Architekt DI Josef Kopf

services

Projekte

contact

Dienstleistung

link


back
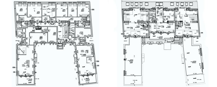
Dachgeschoßausbau, Sanierung 18. Wien
change
up Dachgeschoßausbau, Sanierung 18. Wien Dachgeschoßausbau, Sanierung 18. Wien
pdf-klein