Architekt DI Josef Kopf

services

projects

contact

link


back
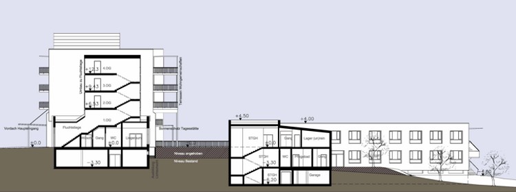
                                            BESTAND                                                                 ZUBAU

Altenpflegeheim Graz Rosenhain

                          Zubau an das bestehende Altenpflegeheim, Funktionssanierung des bestehenden Altenpflegeheims
change
up Altenpflegeheim Graz Rosenhain Funktionssanierung Erweiterung Zubau Altenpflegeheim Graz Rosenhain Funktionssanierung Erweiterung Zubau
pdf-klein